
DHDC
Downtown Hays Development Corporation (DHDC) is pleased to announce it has received a $100,000 grant from the Dane G. Hansen Foundation.
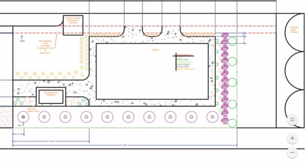
These funds will support the Downtown Pavilion Project,a partnership between DHDC, Fort Hays State University (FHSU) and the City of Hays.
DHDC seeks to revitalize and develop the downtown area through a variety of plans, programs and initiatives.
DHDC is currently in the process of constructing a 40′ x 80′ Pavilion in Downtown Hays. The structure will serve as a gathering place in downtown. In addition to the pavilion, an outbuilding with restrooms is to be constructed.
The Downtown Hays Pavilion will turn an unused space into a place for people to meet and enjoy downtown Hays. Activating this unused space would be a game changer for Downtown Hays.
“Building a new pavilion aligns with the Hays Kansas Comprehensive Plan adopted by the city of Hays in 2012,” Sara Bloom, DHDC Executive Director said.
”The plan names Downtown as a key district and highlights the importance of continuous improvements and growth in the area. A pavilion square is also named as a key component to improving the downtown district and the connection between Downtown Hays and FHSU. We look forward to completing this vision for the area.”
The $100,000 provided by the Dane G. Hansen Foundation will be used to match private donations already secured by DHDC.
All of the funds would be used towards construction materials since all labor for the project would be provided free of charge by FHSU students in the Applied Technology Department enrolled in the Construction Management Program, and city of Hays employees.
“Our goal is to provide a four-season gathering place for the community,” Bloom said. “A place for summer picnics and family get-togethers; a place for visits with Santa and hot chocolate beneath a warm blanket; a place for a local choral performance. We want the pavilion to be utilized by groups throughout the community.”